34 Rue Bérubé
Gatineau (Gatineau) J8P6N2
Maison de plain-pied | MLS: 27735063
524 900 $
Description
BUNGALOW D'EXCEPTION offrant 5 chambres à coucher et 2 salles de bain complètes, idéal pour les familles à la recherche d'espace et de confort! Cette propriété, impeccablement entretenue, se distingue par sa luminosité exceptionnelle et son ambiance chaleureuse. Vous serez charmé par sa magnifique cuisine moderne, parfaite pour recevoir et partager de beaux moments. Chaque pièce a été pensée pour maximiser le confort et la fonctionnalité. Située dans un quartier paisible et recherché, cette propriété vous offre un cadre de vie harmonieux à proximité de tous les services. Une opportunité à ne pas manquer!
** 5 Chambres à coucher ** 2 Salles de bain complètes ** Magnifique cuisine moderne ** Très éclairé ** Aspirateur central ** Coin de rue ** Grand stationnement ** Garage attaché ** Cour privée
Inclus : Micro-ondes avec hotte, aspirateur central et accessoires, piscine h-t 15 pieds et accessoires ouvre-porte de garage électrique, remise ext., stores, pôles et rideaux, thermopompe murale.
Exclus : Lave-vaisselle
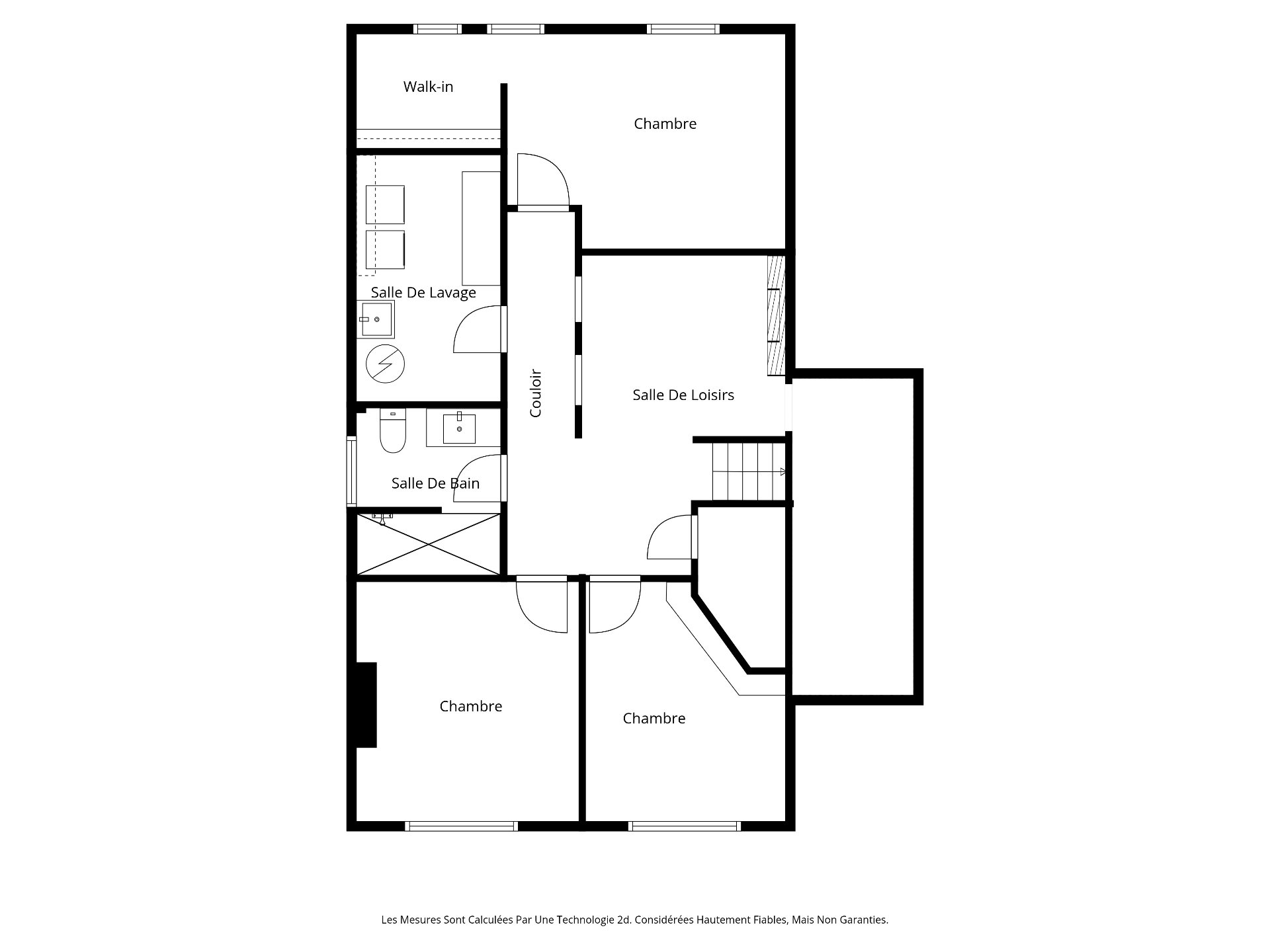
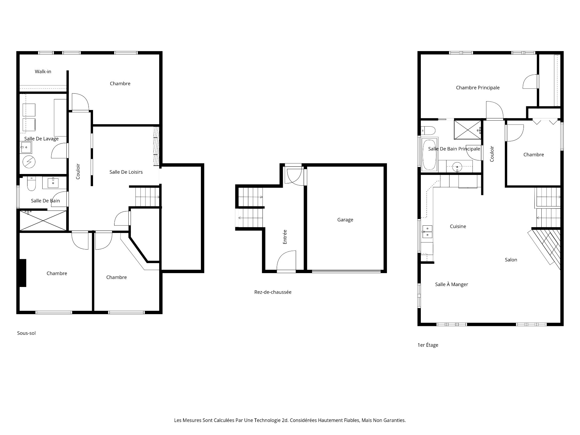
Détails des pièces
| Chambre | Dimensions | Niveau | Revêtement |
|---|---|---|---|
| Hall d'entrée | 7.0 x 5.10 P | Rez-de-chaussée | Céramique |
| Hall d'entrée | 7.0 x 5.10 P | Rez-de-chaussée | Céramique |
| Salon | 16.0 x 12.9 P | Rez-de-chaussée | Bois |
| Salon | 16.0 x 12.9 P | Rez-de-chaussée | Bois |
| Salle à manger | 10.3 x 11.0 P | Rez-de-chaussée | Bois |
| Salle à manger | 10.3 x 11.0 P | Rez-de-chaussée | Bois |
| Cuisine | 13.10 x 10.8 P | Rez-de-chaussée | Céramique |
| Cuisine | 13.10 x 10.8 P | Rez-de-chaussée | Céramique |
| Salle de bains | 11.0 x 8.3 P | Rez-de-chaussée | Céramique |
| Salle de bains | 11.0 x 8.3 P | Rez-de-chaussée | Céramique |
| Chambre à coucher | 8.10 x 10.0 P | Rez-de-chaussée | Plancher flottant |
| Chambre à coucher | 8.10 x 10.0 P | Rez-de-chaussée | Plancher flottant |
| Chambre à coucher principale | 12.0 x 20.0 P | Rez-de-chaussée | Plancher flottant |
| Chambre à coucher principale | 12.0 x 20.0 P | Rez-de-chaussée | Plancher flottant |
| Penderie (Walk-in) | 3.0 x 9.7 P | Rez-de-chaussée | Plancher flottant |
| Penderie (Walk-in) | 3.0 x 9.7 P | Rez-de-chaussée | Plancher flottant |
| Salon | 9.8 x 10.9 P | Sous-sol | Couvre-sol souple |
| Salon | 9.8 x 10.9 P | Sous-sol | Couvre-sol souple |
| Salle familiale | 5.0 x 16.4 P | Sous-sol | Tapis |
| Salle familiale | 5.0 x 16.4 P | Sous-sol | Tapis |
| Chambre à coucher | 13.0 x 10.9 P | Sous-sol | Couvre-sol souple |
| Chambre à coucher | 13.0 x 10.9 P | Sous-sol | Couvre-sol souple |
| Chambre à coucher | 13.0 x 10.9 P | Sous-sol | Couvre-sol souple |
| Chambre à coucher | 13.0 x 10.9 P | Sous-sol | Couvre-sol souple |
| Chambre à coucher | 14.3 x 11.0 P | Sous-sol | Couvre-sol souple |
| Chambre à coucher | 14.3 x 11.0 P | Sous-sol | Couvre-sol souple |
| Penderie (Walk-in) | 4.10 x 5.2 P | Sous-sol | Couvre-sol souple |
| Penderie (Walk-in) | 4.10 x 5.2 P | Sous-sol | Couvre-sol souple |
| Salle de bains | 7.4 x 8.5 P | Sous-sol | Céramique |
| Salle de bains | 7.4 x 8.5 P | Sous-sol | Céramique |
| Salle de lavage | 7.4 x 14.2 P | Sous-sol | Céramique |
| Salle de lavage | 7.4 x 14.2 P | Sous-sol | Céramique |
Caractéristiques
| Sous-sol | 6 pieds et plus, Totalement aménagé |
|---|---|
| Revêtements | Aluminium, Brique |
| Allée | Asphalte, Double largeur ou plus |
| Garage | Attaché, Simple largeur |
| Salle de bains/salle d'eau | Attenante à la chambre principale, Douche indépendante |
| Stationnement | Au garage, Extérieur |
| Proximité | Autoroute/Voie rapide, École primaire, Garderie/CPE, Transport en commun |
| Toiture | Bardeaux d'asphalte |
| Fondation | Béton coulé |
| Aménagement du terrain | Clôturé, Patio, Paysager, Terrain/cour bordé de haies |
| Particularités | Coin de rue, Terrain boisé : feuillus |
| Type de fenêtre | Coulissante, Manivelle |
| Équipement disponible | Cour privée, Installation aspirateur central, Porte de garage électrique, Thermopompe murale |
| Énergie pour le chauffage | Électricité |
| Foyers-poêles | Foyer au bois |
| Piscine | Hors-terre |
| Système d'égouts | Municipal |
| Approvisionnement en eau | Municipalité |
| Topographie | Plat |
| Mode de chauffage | Plinthes à convection, Plinthes électriques |
| Fenêtres | PVC |
| Zonage | Résidentiel |
Sommaire
| Aire Habitable | 1060 PC |
|---|---|
| Nb. de pièces | 16 |
| Chambres à coucher | 5 |
| Salles de bain | 2 |
| Salles d'eau | 0 |
| Année de construction | 1973 |
Bâtiment
| Type | Maison de plain-pied |
|---|---|
| Style | Détaché (Isolé) |
| Dimensions | 44x24.1 P |
| Superficie | 6496.02 PC |
Dépenses
| Taxes municipales (2026) | $ 3791 / année |
|---|---|
| Taxes scolaires (2025) | $ 324 / année |